Omschrijving

Deze moderne drielaagse stadswoning aan de Gabriel Metsulaan 55 biedt alles wat je zoekt: een lichte woonkamer, moderne keuken, twee ruime slaapkamers, extra werkkamer en een heerlijk dakterras met veel privacy. De woning is volledig voorzien van vloerverwarming en heeft een gunstig energielabel A. Daarnaast beschik je over een eigen parkeerplaats, kun je gebruikmaken van vijf gedeelde parkeerplaatsen én is er een gezamenlijke fietsenstalling aanwezig. Gelegen op een rustige, groene locatie op korte afstand van het centrum van Eindhoven, winkels, scholen en uitvalswegen.

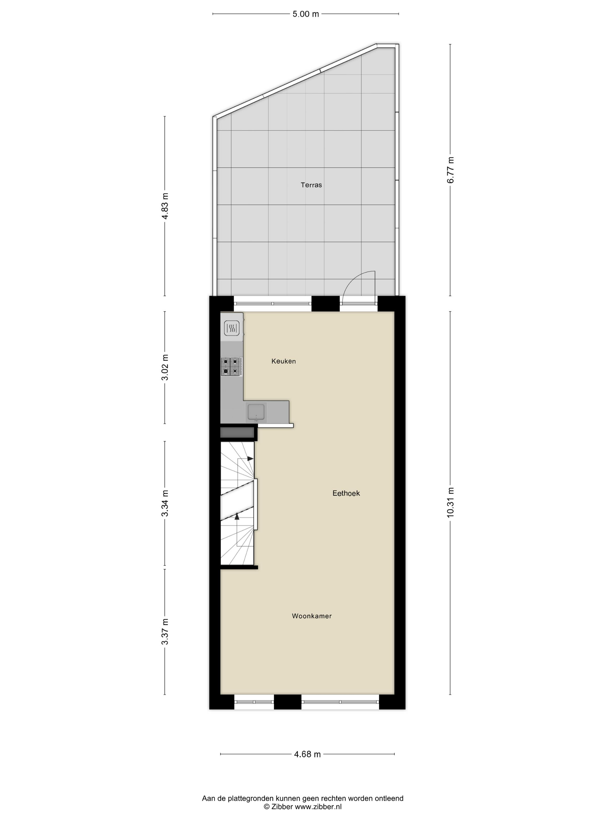
Begane grond
Je komt binnen via een verzorgde entree met toegang tot de hal. Hier bevinden zich de garderobe en de meterkast.

Werkkamer
Vanuit de hal loop je rechts een ruime kamer binnen, die perfect te gebruiken is als werkkamer, hobbyruimte of logeerkamer.

Berging
Aan de achterzijde van de woning bevindt zich een ruime berging met volop vaste kastruimte. In de trapkast is de opstelling CV-ketel te vinden net zoals de unit van de vloerverwarming en de centrale afzuiging. Hier zijn ook de aansluitingen voor wasmachine en droger aanwezig, evenals een wateraansluiting. Een praktische ruimte die zich uitstekend leent als washok, bijkeuken of extra opbergruimte. Vanuit de berging heb je bovendien rechtstreeks toegang tot de achterzijde van de woning, waar je beschikt over een eigen parkeerplaats bij het overdekte parkeerterrein. Hier kun je ook gebruikmaken van vijf gedeelde parkeerplaatsen en de gezamenlijke fietsenstalling.

Eerste verdieping
Leefgedeelte
Via de trap kom je op de eerste verdieping: de centrale leefverdieping van de woning. Wat direct opvalt, is de overvloed aan licht dankzij de grote ramen aan zowel de voor- als achterzijde. De gehele verdieping is afgewerkt met een nette laminaatvloer, die zorgt voor een rustige en verzorgde uitstraling.
Aan de voorzijde bevindt zich de ruime zithoek, waar de grote raampartijen zorgen voor een prettige, open sfeer. Een echte eyecatcher is de glasplaat in de vloer bij de zithoek, waardoor je naar beneden kunt kijken. In het midden van de verdieping is ruimte voor een royale eethoek, waar je met gemak een grote eettafel kunt plaatsen.

Keuken
Aan de achterzijde ligt de moderne keuken, voorzien van een vierpits gasstel met afzuiging, vaatwasser, koelkast, spoelbak en veel kastruimte. Ook hier zorgen de grote ramen voor een lichte en frisse uitstraling.

Dakterras
Via de keuken bereik je het ruime balkon/dakterras, een heerlijke beschutte plek om te genieten van het buitenleven. Dankzij de groene afscheiding geniet je hier van veel privacy; een echt verlengstuk van de woonkamer.

Tweede verdieping
Overloop
Op de tweede verdieping kom je op een ruime overloop met toegang tot twee grote slaapkamers, de badkamer en een inbouwkast met volop bergruimte voor bijvoorbeeld seizoensspullen of linnengoed. De laminaatvloer loopt hier ook netjes door over de hele verdieping.

Slaapkamers
De hoofdslaapkamer ligt aan de achterzijde en is royaal van formaat, met drie draaikiepramen die zorgen voor veel daglicht. Aan de voorzijde bevindt zich de tweede slaapkamer, eveneens ruim en geschikt voor een tweepersoonsbed en linnenkast.

Badkamer
De badkamer ligt centraal tussen beide slaapkamers en is modern afgewerkt. Deze is voorzien van een ligbad, inloopdouche, wastafel en toilet. De betegeling in lichte en donkere tinten geeft de ruimte een eigentijdse uitstraling. Daarnaast is er mechanische ventilatie aanwezig.

Omgeving
De woning ligt in een groene en levendige woonomgeving met alle voorzieningen binnen handbereik. Scholen, winkels, sportfaciliteiten en openbaar vervoer liggen op korte afstand. Ook ben je met de fiets of auto snel in het centrum van Eindhoven of bij de uitvalswegen richting de A2 en A67.

VvE en onderhoud

Bij deze woning hoort een VvE (Vereniging van Eigenaren). De maandelijkse bijdrage bedraagt €134,- en dekt het onderhoud van de buitenruimte, het wassen van de ramen en de opstalverzekering

Kenmerken op een rij:
• Ruime drielaagse woning met moderne afwerking
• Twee grote slaapkamers en een werkkamer
• Compleet uitgeruste keuken
• Moderne badkamer met ligbad en inloopdouche
• Ruim balkon/dakterras met veel privacy
• Eigen parkeerplaats, 5 gedeelde parkeerplaatsen en gezamenlijke fietsenstalling
• Veel bergruimte, waaronder een grote berging en inbouwkast
• Centraal gelegen in een groene, rustige wijk nabij voorzieningen

Heb je vragen, of wil je even binnen kijken??

Neem vrijblijvend contact met ons op
Deze woning delen

Kenmerken

Aanvaarding

Vraagprijs
€ 600.000,00
Status
Beschikbaar
Aanvaarding
In overleg

Bouw

Woonhuistype
Tussenwoning
Bouwvorm
Bestaande bouw
Bouwjaar
2009
Onderhoudswaardering binnen
Goed
Onderhoudswaardering buiten
Goed
Ligging
In centrum

Indeling

Woonoppervlakte
129 m²
Inhoud
457 m³
Kamers
6
Slaapkamers
3

Energie

Energieklasse
A
Isolatie
Dakisolatie, Muurisolatie, Vloerisolatie, HR glas
Verwarming
CV-ketel, Vloerverwarming (geheel)

Buitenruimte

Tuintypes
Zonneterras

Garage

Garagesoort
Geen garage

Video's

Plattegronden

Map 1
Map 2
Map 3
Map 4
Map 5

Meer informatie

Wilt u meer informatie over Gabriël Metsulaan 55, EINDHOVEN? Laat dan hier uw email adres achter zodat wij u kunnen informeren.

* We respecteren uw privacy en sturen alleen relevante informatie.