Omschrijving

English below
SFEERVOLLE TWEE-ONDER-EEN-KAPWONING OP EEN CENTRALE LOCATIE IN EINDHOVEN

Deze vooroorlogse twee-onder-een-kapwoning aan de Blaarthemseweg 73 in Eindhoven biedt veel mogelijkheden. Met een lichte woonkamer, drie slaapkamers en een grote achtertuin is dit een ideale woning voor een gezin. De woning is praktisch ingedeeld en heeft veel opbergruimte.

Daarnaast is de ligging uitstekend: op korte afstand vindt u diverse voorzieningen zoals winkels, scholen en sportfaciliteiten. Ook het High Tech Campus en ASML bevinden zich in de nabije omgeving, wat deze woning ideaal maakt voor mensen die in de regio werken. Bovendien zijn uitvalswegen en openbaar vervoer goed bereikbaar.

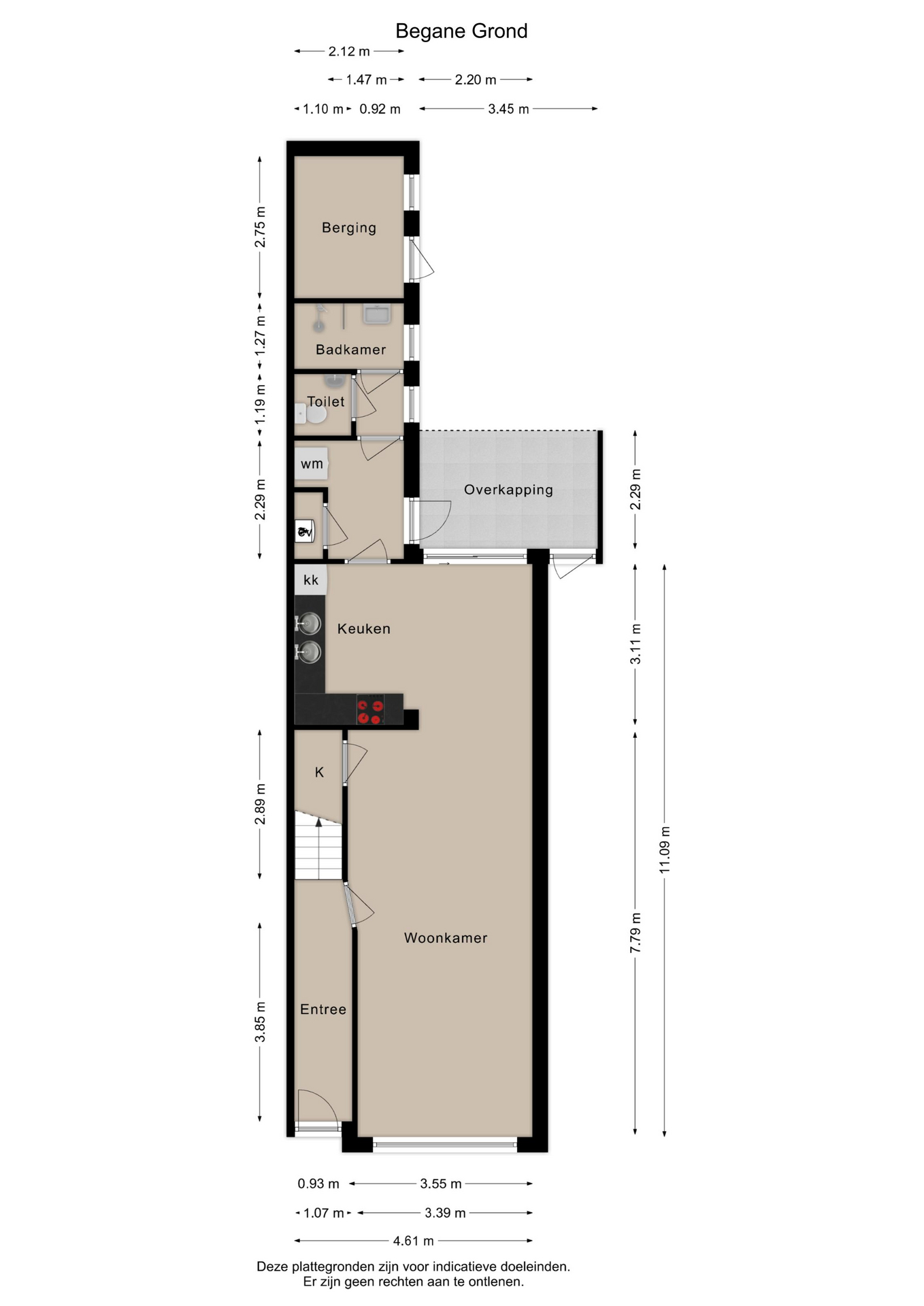
BEGANE GROND

ENTREE
Via de voordeur komt u in de hal. Hier bevindt zich de meterkast en de trap naar de eerste verdieping.

WOONKAMER
De woonkamer is ruim van opzet en geniet van veel lichtinval. U heeft zicht op zowel de straat als de achtertuin. Er is ruimte voor een grote zithoek en een eettafel.
Onder de trap bevindt zich een trapkast met extra opbergruimte. Naast de keuken is voldoende plek voor een extra zithoek. De woonkamer is in lichte tinten afgewerkt en voorzien van een eiken plankenvloer.

KEUKEN
De keuken is voorzien van een houten hoekopstelling met gasfornuis, afzuigkap, oven en koel-vriescombinatie. De keuken is voorzien van een tegelvloer.

BIJKEUKEN
Hier vindt u de aansluitingen voor het witgoed en de cv-ketel (HR Solide Plus, 2012). Via een deur heeft u toegang tot de achtertuin en het sanitaire gedeelte van de woning.

ACHTERPORTAAL
In het achterportaal zijn het toilet en de badkamer gesitueerd. Het toilet is voorzien van mechanische ventilatie, een fonteintje en wandhoge betegeling.

BADKAMER
De badkamer beschikt over een wastafel, radiator, raam voor natuurlijke ventilatie, inbouwspots en mechanische ventilatie.

EERSTE VERDIEPING

OVERLOOP

Vanaf de overloop heeft u toegang tot drie slaapkamers en een trapkast. In deze trapkast
bevindt zich een trap naar de bergzolder. Een loopdeur met groot raam geeft toegang tot
het dakterras en zorgt voor veel lichtinval.

SLAAPKAMERS

De woning heeft drie slaapkamers. De eerste slaapkamer biedt ruimte voor een bed en bureau en heeft zicht op de straat. De tweede slaapkamer is geschikt voor een tweepersoonsbed en een kledingkast en heeft eveneens zicht op de straat. De grootste slaapkamer bevindt zich aan de achterzijde van de woning en ontvangt de hele dag door
zonlicht.

BERGZOLDER
De bergzolder biedt veel bergruimte en is toegankelijk via de trapkast op de overloop.

BUITENRUIMTE

VOORTUIN
De voortuin is netjes aangelegd en voorzien van een hekwerk.

ACHTERTUIN
De achtertuin is onderhoudsvriendelijk en bestaat deels uit gazon en deels uit bestrating. Een uitbouw aan de achterzijde zorgt voor een schaduwrijk plekje.
De berging is voorzien van elektra, verwarming en een wateraansluiting. Er is een achterom via een gang naast de woning. Daarnaast beschikt de tuin over een volière, ideaal voor het houden van vogels.

BELANGRIJKSTE KENMERKEN

Ruime twee-onder-een-kapwoning

Lichte woonkamer met zicht op de tuin en straat

Drie slaapkamers en een dakterras

Ruime achtertuin met berging en achterom

Extra bergruimte onder de trap en op zolder

Deze woning biedt volop mogelijkheden en is ideaal voor gezinnen die op zoek zijn naar ruimte en comfort!

ENGLISH
ATMOSPHERIC SEMI-DETACHED HOUSE IN A CENTRAL LOCATION IN EINDHOVEN
This pre-war semi-detached home at Blaarthemseweg 73 in Eindhoven offers plenty of possibilities. With a bright living room, three bedrooms, and a spacious backyard, this is an ideal family home. It also has a practical layout and ample storage space.
Additionally, the location is excellent: various amenities such as shops, schools, and sports facilities are within close reach. The High Tech Campus and ASML are also nearby, making this home perfect for professionals working in the region. Moreover, major roads and public transport are easily accessible.

GROUND FLOOR
ENTRANCE
Through the front door, you enter the hallway, where you will find the meter cupboard and the staircase to the first floor.

LIVING ROOM
The spacious living room benefits from plenty of natural light and offers views of both the street and the backyard. There is ample space for a large seating area and a dining table. Under the stairs, there is a built-in storage cupboard. Next to the kitchen, there is additional space for a seating area. The living room is finished in light tones and features an oak plank floor.

KITCHEN
The kitchen is equipped with a wooden corner unit, including a gas stove, extractor hood, oven, and fridge-freezer combination. The floor is finished with tiles.

UTILITY ROOM
This space contains connections for laundry appliances and the central heating boiler (HR Solide Plus, 2012). A door provides access to the backyard and the sanitary section of the house.

REAR HALLWAY
The toilet and bathroom are situated in the rear hallway. The toilet features mechanical ventilation, a small sink, and full-height tiling.

BATHROOM
The bathroom includes a sink, radiator, window for natural ventilation, built-in spotlights, and mechanical ventilation.

FIRST FLOOR
LANDING
From the landing, you have access to three bedrooms and a storage cupboard. A door with a large window leads to the rooftop terrace, allowing plenty of natural light.

BEDROOMS
The house has three bedrooms: two at the front and the master bedroom at the rear.

ATTIC STORAGE
The attic offers ample storage space and is accessible via the storage cupboard on the landing.

OUTDOOR SPACE
FRONT GARDEN
The front garden is neatly landscaped and enclosed by fencing.

BACKYARD
The low-maintenance backyard consists of both lawn and paving. An extension at the rear provides a shaded area.
The storage shed is equipped with electricity, heating, and a water connection. There is a back entrance via a passage next to the house.

KEY FEATURES
• Spacious semi-detached house
• Bright living room with views of the garden and street
• Three bedrooms and a rooftop terrace
• Spacious backyard with a storage shed and back entrance
• Extra storage space under the stairs and in the attic

This home offers plenty of possibilities and is ideal for families looking for space and comfort!

Heb je vragen, of wil je even binnen kijken??

Neem vrijblijvend contact met ons op
Deze woning delen

Kenmerken

Aanvaarding

Vraagprijs
€ 425.000,00
Status
Verkocht
Aanvaarding
In overleg

Bouw

Woonhuistype
Twee-onder-een-kapwoning
Bouwvorm
Bestaande bouw
Bouwjaar
1928
Onderhoudswaardering binnen
Redelijk tot goed
Onderhoudswaardering buiten
Redelijk tot goed
Ligging
Aan rustige weg, In woonwijk

Indeling

Woonoppervlakte
98 m²
Perceel oppervlakte
203 m²
Inhoud
400 m³
Kamers
5
Slaapkamers
3
Badkamers
1

Energie

Energieklasse
G
Isolatie
Muurisolatie, Vloerisolatie, Gedeeltelijk dubbel glas
Verwarming
CV-ketel

Buitenruimte

Tuintypes
Achtertuin, Voortuin

Garage

Garagesoort
Geen garage

Video's

Plattegronden

Map 1
Map 2
Map 3
Map 4

Meer informatie

Wilt u meer informatie over Blaarthemseweg 73, EINDHOVEN? Laat dan hier uw email adres achter zodat wij u kunnen informeren.

* We respecteren uw privacy en sturen alleen relevante informatie.