Omschrijving

Aan de Bergmannstraat 75 vind je een huis waar je je snel thuis voelt. De straat is rustig, met veel groen en een prettige sfeer. Alles wat je nodig hebt, ligt dichtbij: winkels, scholen, sportvelden en het park. De woning is netjes onderhouden, heeft een moderne keuken en een zonnige tuin op het zuidoosten. Een fijn huis voor wie comfortabel en praktisch wil wonen.

BEGANE GROND

ENTREE
Via de voordeur kom je in de hal. Op de vloer liggen grijze Therdox Stone PVC tegels. Hier vind je het toilet, de trap naar boven, een trapkast, de keuken en de woonkamer. De trapkast biedt handige opbergruimte voor voorraad en spullen.

WOONKAMER
De woonkamer is licht en ruim door de grote ramen aan de voor- en achterkant. Op de vloer ligt vloerbedekking. Een openhaard zorgt voor warmte en gezelligheid. Aan de achterkant is een deur naar de tuin. Er is genoeg plek voor een eettafel en een fijne zithoek.

KEUKEN
De keuken is vernieuwd en heeft zandkleurige hoogglans kasten met een grijs aanrechtblad. Dat geeft een moderne uitstraling. Er zijn inbouwspots, een inductiekookplaat, koelkast, vriezer, vaatwasser, spoelbak en een designradiator. Via de deur met apart raam kun je makkelijk naar buiten en luchten.

TOILET
Het toilet is helemaal betegeld en heeft een fonteintje en mechanische ventilatie.

EERSTE VERDIEPING

OVERLOOP
Vanaf de overloop bereik je drie slaapkamers, een apart toilet, de badkamer en de zolder via een vlizotrap.

SLAAPKAMERS
De slaapkamers aan de voor- en achterkant hebben handige inbouwkasten. De achterste slaapkamer heeft vloerbedekking, de voorste een laminaatvloer. De derde, kleinere kamer is voorzien van een tegelvloer. De kozijnen op deze verdieping zijn van kunststof.

BADKAMER
De badkamer is netjes betegeld en heeft een draai-kiepraam. Er is een wastafel met meubel en een ruime inloopdouche.

TOILET
Het tweede toilet is halfhoog betegeld, heeft een fonteintje en hier zijn aansluitingen voor het witgoed aanwezig.

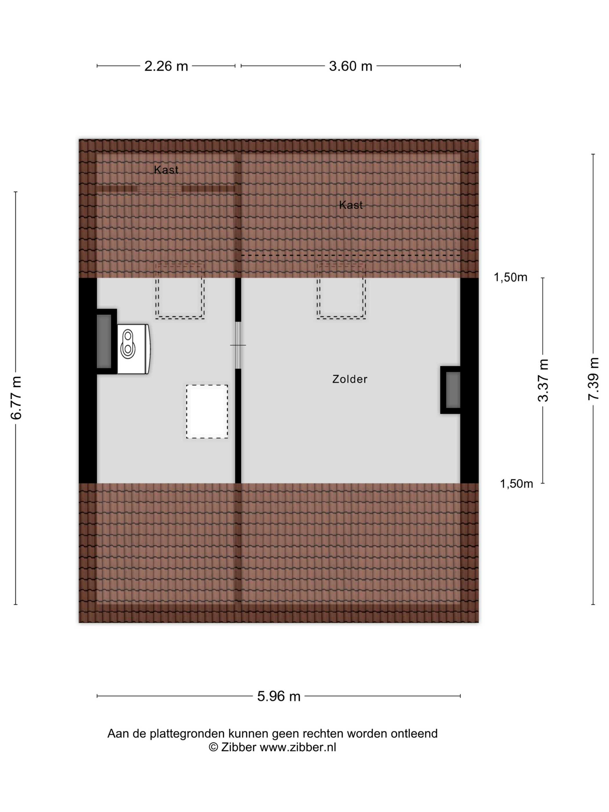
TWEEDE VERDIEPING

VOORZOLDER
Via de vlizotrap kom je op de zolder met een betonnen vloer en Velux dakraam. Dat zorgt voor minder geluid. Met een vaste trap kun je deze verdieping ombouwen tot extra woonruimte van zo’n 20 m². Ook staat hier de cv-ketel opgesteld.

SLAAPKAMER ZOLDER
Hier is een groot Velux dakraam wat zorgt voor extra daglicht. De ruimte is ideaal als hobbykamer of extra slaapkamer.

BUITENRUIMTE

VOORTUIN
De voortuin is verzorgd aangelegd en geeft het huis een nette uitstraling.

ACHTERTUIN
De achtertuin ligt op het zuidoosten, dus je hebt veel zon. Er is een terras met zonneluifel en een mooi stuk gras met beplanting. Via een poort kun je naar de gang naast het huis. Achterin de tuin staat een stenen berging voor fietsen en tuingereedschap.

OMGEVING

De woning ligt in een rustige woonwijk met veel groen. Op korte afstand zijn scholen, winkels en sportvelden. Er is een speelveldje in de buurt, ideaal voor kinderen. Ook het centrum van Eindhoven en het openbaar vervoer zijn goed bereikbaar.

BELANGRIJKSTE KENMERKEN

Ruime, lichte woonkamer met gashaard
Vernieuwde, moderne keuken met inbouwapparatuur
Drie slaapkamers en extra ruimte op zolder
Twee toiletten en een nette badkamer
Kunststof kozijnen op de eerste verdieping
Achtertuin op het zuidoosten met berging en zonneluifel
Rustige, groene ligging dichtbij voorzieningen
Mogelijkheid om de zolder uit te breiden tot extra woonruimte (totaal ca. 108 m²)

Heb je vragen, of wil je even binnen kijken??

Neem vrijblijvend contact met ons op
Deze woning delen

Kenmerken

Aanvaarding

Vraagprijs
€ 500.000,00
Status
Beschikbaar
Aanvaarding
In overleg

Bouw

Woonhuistype
Eindwoning
Bouwvorm
Bestaande bouw
Bouwjaar
1957
Onderhoudswaardering binnen
Redelijk
Onderhoudswaardering buiten
Redelijk
Ligging
In woonwijk

Indeling

Woonoppervlakte
88 m²
Perceel oppervlakte
235 m²
Inhoud
383 m³
Kamers
5
Slaapkamers
3
Badkamers
1

Energie

Energieklasse
D
Isolatie
Dakisolatie, Grotendeels dubbelglas
Verwarming
CV-ketel

Buitenruimte

Tuintypes
Achtertuin, Voortuin

Garage

Garagesoort
Geen garage

Plattegronden

Map 1
Map 2
Map 3
Map 4

Meer informatie

Wilt u meer informatie over Bergmannstraat 75, EINDHOVEN? Laat dan hier uw email adres achter zodat wij u kunnen informeren.

* We respecteren uw privacy en sturen alleen relevante informatie.