Omschrijving

Op een fijne plek in Eindhoven staat deze ruime woning met een grote tuin en een lange overkapping. Alles wat je nodig hebt ligt dichtbij zoals winkels, scholen, sport en uitvalswegen. Je woont hier rustig, maar je bent ook zo onderweg naar het centrum of de snelweg. Een huis waar je elke dag praktisch woont, met genoeg ruimte voor werk, gezin en hobby’s.

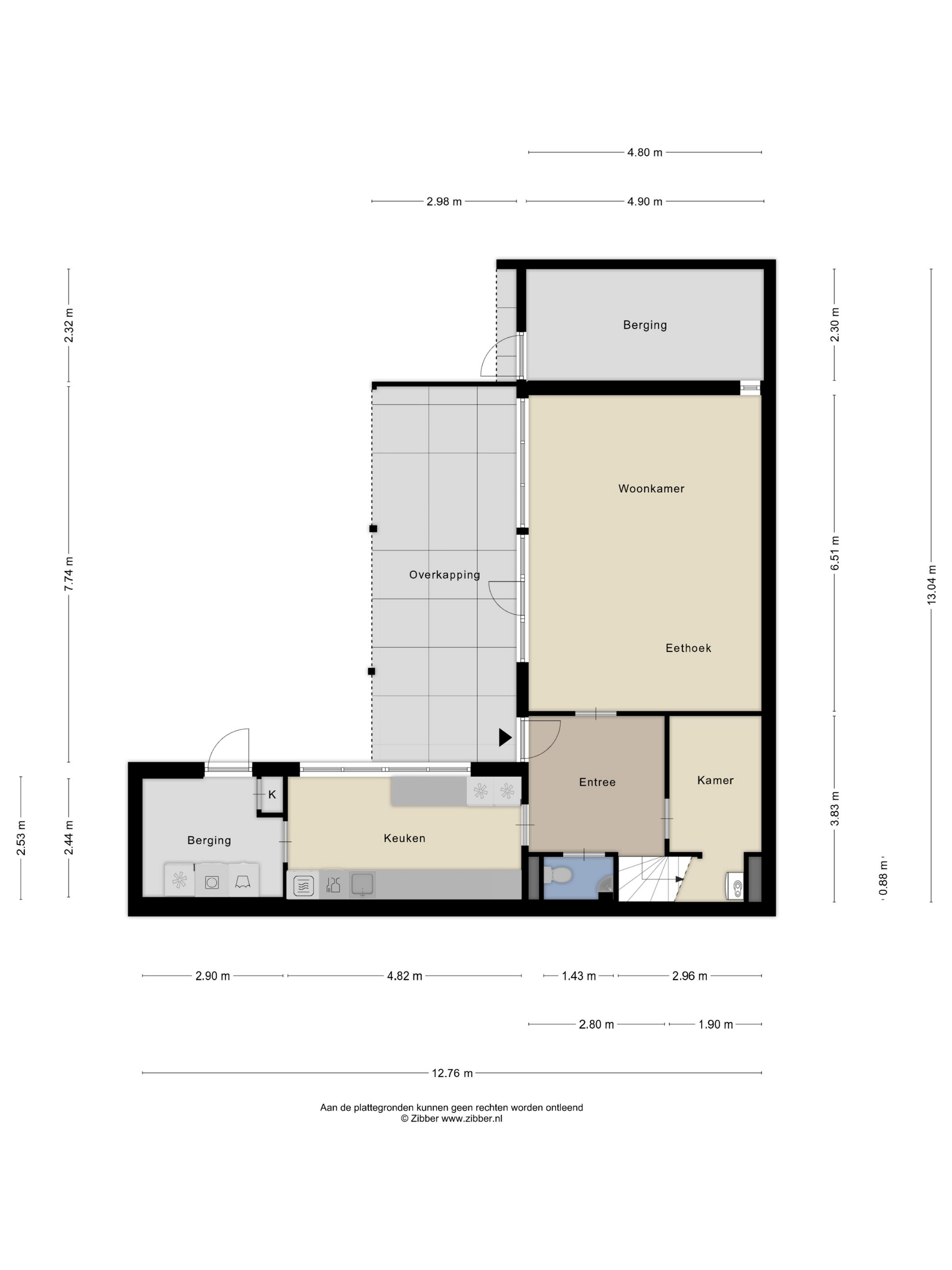
BEGANE GROND
ENTREE
Via de poort kom je in de achtertuin en bij de voordeur. Je stapt binnen in een ruime entree met toegang tot de werkkamer, woonkamer, toilet, keuken en de trap naar de eerste verdieping. Op de vloer ligt een laminaatvloer.

WOONKAMER
De woonkamer is ruim en heeft plek voor een grote zithoek en een eettafel. Er is een raam met zicht op de berging en een grote raampartij met loopdeur naar de overkapping. De convectorputten zorgen voor verwarming op koude dagen. Vanuit de kamer kijk je uit op de grote overkapping.

WERKKAMER
Een praktische werkkamer met laminaatvloer. Er is ruimte voor twee bureaus en er is opbergruimte. Ook vind je hier de cv-opstelling (Vaillant, 2017).

KEUKEN
De keuken heeft een landelijke stijl met een rood-wit betegelde achterwand. Er zijn hoge kastjes en aan twee zijden werkruimte. De keuken is voorzien van een gaskookplaat, oven, magnetron, koelkast, afzuigkap en vaatwasser. De grote raampartij kijkt uit op de achtertuin. Vanuit de keuken loop je zo door naar de bijkeuken.

BIJKEUKEN
In de bijkeuken vind je de witgoedaansluitingen. Er is veel ruimte om spullen op te bergen en je hebt een loopdeur naar de tuin. De ruimte is afgewerkt met inbouwspots.

TOILET
Het toilet is halfhoog betegeld en voorzien van een wandcloset en een fonteintje. Er is mechanische ventilatie en de verlichting is netjes weggewerkt in inbouwspots.

EERSTE VERDIEPING
OVERLOOP
De overloop geeft toegang tot drie slaapkamers en de badkamer. Op de vloer ligt laminaat. Er hangt een Daikin airco, ideaal om te koelen en te verwarmen.

SLAAPKAMERS
De slaapkamers zijn van een fijn formaat, met ruimte voor een tweepersoonsbed en een kast. De kamer aan het einde van de gang is de grootste slaapkamer. Een fijne plek om te slapen en te ontspannen.

BADKAMER
De badkamer is praktisch ingedeeld met een wandcloset, dubbele wastafel met meubel en een inloopdouche. Er is mechanische ventilatie en een raam voor extra frisse lucht. Dankzij de glazen stenen in de muur komt er veel licht binnen.

BUITENRUIMTE
TUIN
De achtertuin is ruim en netjes aangelegd met een groot gazon van kunstgras. Over de lengte van de woning ligt een grote overkapping, waardoor je veel beschut buiten zit. Vanuit de tuin heb je toegang tot de entree en de bijkeuken. Ook is er een ruime berging, ideaal voor fietsen en tuinspullen.

OMGEVING
Mortierlaan 12 ligt in een wijk met veel dagelijkse voorzieningen dichtbij. Denk aan supermarkten, scholen, speelplekken en sportclubs. Je bent snel in het centrum van Eindhoven en ook de uitvalswegen liggen gunstig. Hierdoor ben je zo onderweg richting andere delen van de stad en de regio.

KENMERKEN
• Ruime woning op een fijne locatie in Eindhoven
• Landelijke keuken met complete inbouwapparatuur
• Werkkamer op de begane grond, ideaal voor thuiswerken
• Drie slaapkamers op de eerste verdieping
• Badkamer met inloopdouche, dubbele wastafel en daglicht
• Daikin airco op de overloop voor koelen en verwarmen
• Cv-installatie Vaillant uit 2017
• Grote tuin met kunstgras, lange overkapping en ruime berging

Heb je vragen, of wil je even binnen kijken??

Neem vrijblijvend contact met ons op
Deze woning delen

Kenmerken

Aanvaarding

Vraagprijs
€ 437.500,00
Status
Beschikbaar
Aanvaarding
In overleg

Bouw

Woonhuistype
Hoekwoning
Bouwvorm
Bestaande bouw
Bouwjaar
1974
Onderhoudswaardering binnen
Redelijk tot goed
Onderhoudswaardering buiten
Redelijk tot goed
Ligging
In woonwijk

Indeling

Woonoppervlakte
120 m²
Perceel oppervlakte
176 m²
Inhoud
426 m³
Kamers
5
Slaapkamers
3
Badkamers
1

Energie

Energieklasse
C
Isolatie
Dakisolatie, Muurisolatie, HR glas
Verwarming
CV-ketel

Buitenruimte

Tuintypes
Voortuin

Garage

Garagesoort
Geen garage

Plattegronden

Map 1
Map 2

Meer informatie

Wilt u meer informatie over Mortierlaan 12, EINDHOVEN? Laat dan hier uw email adres achter zodat wij u kunnen informeren.

* We respecteren uw privacy en sturen alleen relevante informatie.